Op een strategische en vlot bereikbare locatie aan de Sint-Bernardsesteenweg, op de hoek met de Abdijstraat, bevindt zich dit uniek en vergund ontwikkelingsproject.
Het gebouw bestaat in huidige staat uit:
- Het voormalig postkantoor
- Een ruim appartement met drie slaapkamers
- Een magazijn
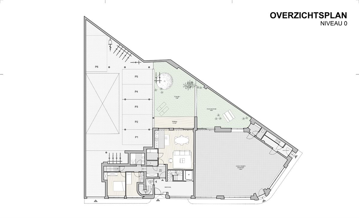
Volgens de goedgekeurde stedenbouwkundige vergunning kunnen in totaal zes kwalitatieve woongelegenheden, een kantoor en parkeerplaatsen worden gerealiseerd.
Beschrijving van het vergund project:
- Een twee-slaapkamer appartement met een ruime privatieve tuin gelegen op het gelijkvloers;
- Een twee-slaapkamer appartement met een privatief terras gelegen op de tweede verdieping;
- Een duplex-appartement met drie slaapkamers en een groot terras;
- Twee lichtrijke een-slaapkamer appartementen met elk een eigen terras, gelegen op de eerste verdieping;
- Een drie-slaapkamer appartement met een privatief terras gelegen op de tweede verdieping;
- Een casco commerciële ruimte, perfect geschikt voor een uitbating van een kantoor, praktijk of vrij beroep.
Verder voorziet het project zes parkeerplaatsen, een fietsenstalling en kelder, wat bijdraagt aan een praktische en duurzame mobiliteitsoplossing. Dankzij de centrale ligging geniet men van een vlotte bereikbaarheid en nabijheid van het openbaar vervoer, winkels en belangrijke invalswegen.
Dit project vormt een uitstekende investeringsopportuniteit en biedt een zeldzame combinatie van kwalitatief wonen en professioneel gebruik, met een sterke focus op toekomstwaarde en rendement.
Verdere informatie, plannen en vergunningsdetails zijn beschikbaar op aanvraag.
Interesse? 03 283 06 06 of info@reant.be
















