Lichtrijk Appartement met Panoramisch Uitzicht op de Skyline van Antwerpen
Op de 10e verdieping van een verzorgd gebouw met lift, in de residentiële Fruithoflaan in Berchem, bevindt zich dit instapklaar en energiezuinig appartement met twee slaapkamers en een indrukwekkend uitzicht.
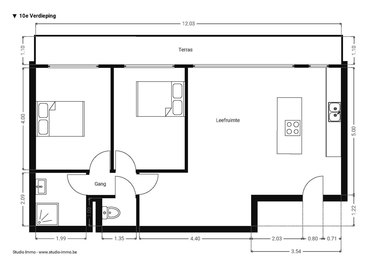
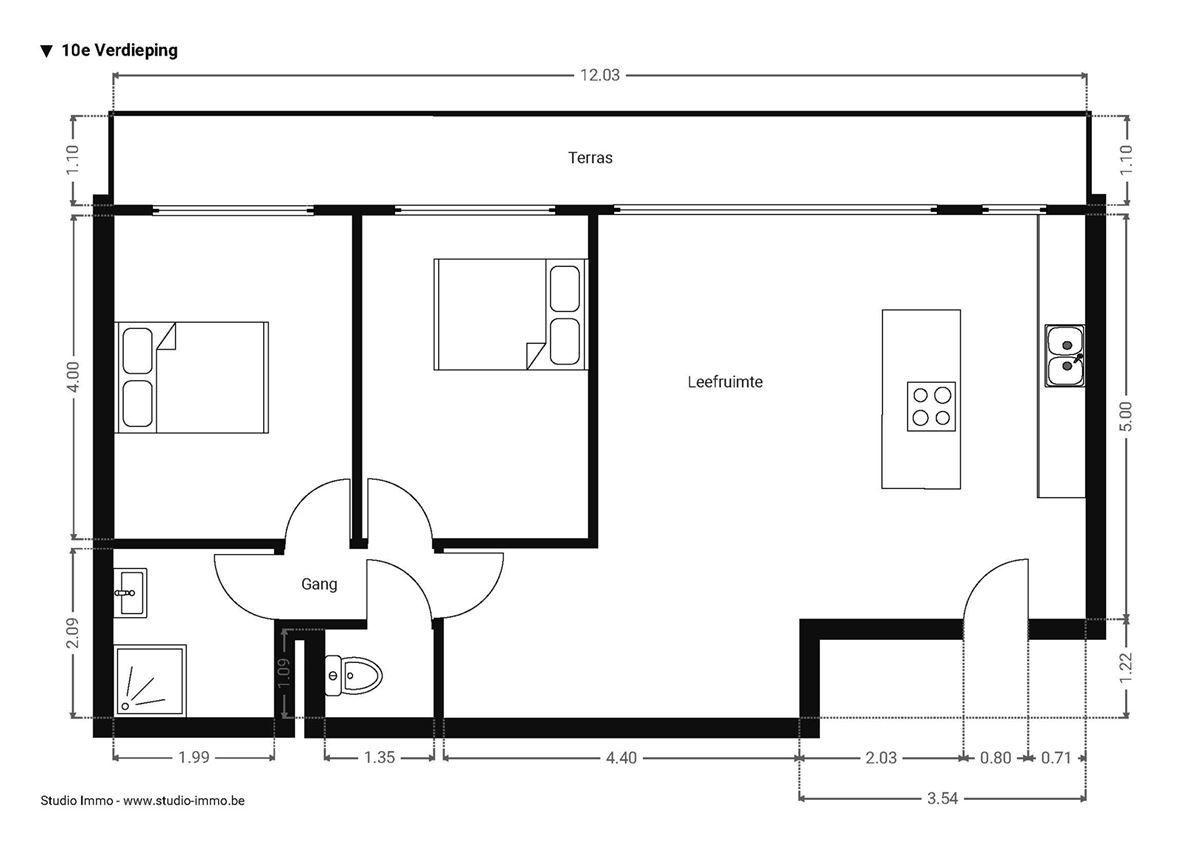
Bij het binnenkomen valt meteen de open leefruimte op, waar grote ramen zorgen voor een overvloed aan natuurlijk licht. De strakke, volledig uitgeruste keuken is niet alleen visueel aantrekkelijk, maar ook bijzonder functioneel dankzij het luxueuze keramisch werkblad en kwalitatieve ingebouwde toestellen.
Achteraan bevinden zich twee slaapkamers (ca. 12 m² en 10 m²), beiden met warme parketvloer en radiatoren. De badkamer is uitgerust met een moderne inloopdouche en een stijlvol wastafelmeubel. Een apart toilet verhoogt het comfort.
Dé eyecatcher van dit appartement is ongetwijfeld het ruime, oostgerichte terras van ca. 17 m². Hier geniet u dagelijks van een rustgevend, groen zicht over het park én een uniek panoramisch uitzicht op de skyline van Antwerpen.
De Fruithoflaan staat bekend als een rustige, residentiële buurt in Berchem, met winkels, scholen, sportfaciliteiten en openbaar vervoer op wandelafstand (350 m). Dankzij de uitstekende verbinding met belangrijke invalswegen is een vlotte bereikbaarheid gegarandeerd. Ideaal voor wie rustig wil wonen met de voordelen van de stad binnen handbereik.
TROEVEN
+ Elektriciteit conform AREI
+ Panoramisch zicht én uitzicht op groen
+ Groot oostgericht terras (ca. 17 m²)
+ Energiezuinig appartement (EPC-label B)
+ Kelder en fietsenberging inbegrepen

























