Halfopen woning te Molenveld in Edegem - instapklare woning vol licht en comfort
Ontdek deze prachtige, energiezuinige halfopen bebouwing, ideaal voor wie op zoek is naar een instapklare woning met veel charme en moderne comfortvoorzieningen. De woning werd in 2014 grondig gerenoveerd en beschikt sindsdien over een EPC-label B, dankzij slimme investeringen zoals zonnepanelen, airco, nieuwe ramen, een volledig geïsoleerd dak, een moderne keuken en een luxe badkamer.
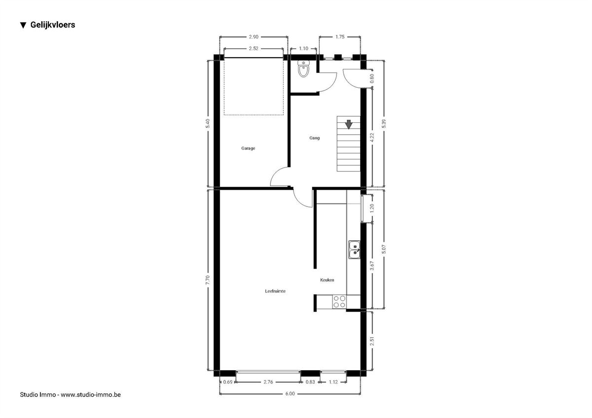
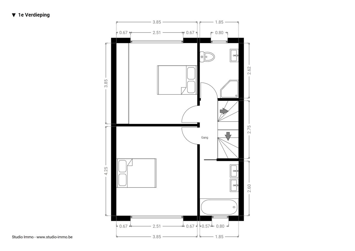
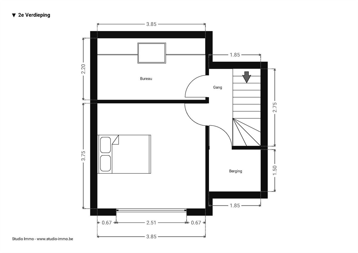
Binnenin geniet u van een overvloed aan natuurlijk licht, wat een warme en aangename sfeer creëert in elke ruimte. De indeling is praktisch en ruim: een lichtrijke leefruimte, een volledig uitgeruste keuken en voldoende plaats voor gezellige familiediners, 3 slaapkamers en 1 bureaukamer. Bovendien beschikt de woning over een ruime kelder, perfect als extra bergruimte, en een garage met elektrische poort voor optimaal gemak.
De tuin is een absolute troef: rustig, zongericht en ideaal om te ontspannen, te tuinieren of te genieten van zomerse barbecues. De ligging is eveneens uitstekend: u woont in een rustige buurt, met vlotte verbindingen naar het centrum van Edegem en Antwerpen, en alle voorzieningen zoals scholen, supermarkten en recreatiemogelijkheden liggen binnen handbereik.
Deze woning combineert een energiezuinig en comfortabel interieur met een rustige, zonnige buitenruimte en een toplocatie. Een perfecte keuze voor wie graag instapklaar woont in een groene en goed verbonden omgeving.


























