Logo

Nieubouwproject Mortsel

€ 355.000
Nieuw

1
1
82

Nieuwbouwproject : "Residentie Armand"

Het appartementsgebouw is gunstig gelegen, op een strategische locatie nabij het centrum van Mortsel. Dankzij deze centrale ligging bevinden alle essentiële voorzieningen zich op wandelafstand, wat bijdraagt aan een comfortabele woonervaring.

Ook op het vlak van mobiliteit is de ligging interessant: meerdere tram- en bushaltes bevinden zich in de directe omgeving, wat zorgt voor een uitstekende verbinding met Antwerpen en omliggende gemeenten.

Het centrum van Edegem bevindt zich op minder dan 2 km afstand en is vlot bereikbaar te voet, met de fiets, het openbaar vervoer of de wagen. Deze nabijheid van twee centra combineert het beste van twee werelden.

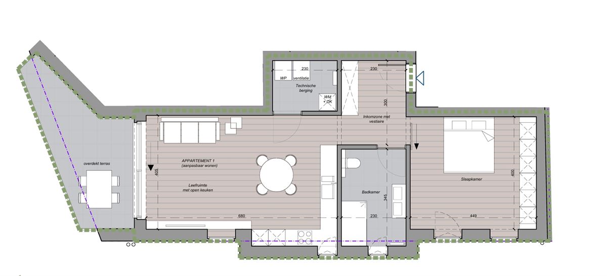
Residentie Armand bestaat uit vijf stijlvolle appartementen, verdeeld over drie verdiepingen. Op de gelijkvloerse verdieping bevinden zich vier overdekte parkeerplaatsen en een fietsenberging.

Op verdiepingen een en twee liggen telkens twee appartementen. Op het derde verdiep is het penthouse gelegen.

Elk appartement beschikt over een inkomhal, een leefruimte met open keuken, slaapkamers, badkamer(s), een berging en een terras.

Bent u geïnteresseerd en wil u deze unieke kans niet missen? Neem contact op met 03283 06 06 of info@reant.be

Algemene informatie


AdresEdegemsestraat 134 / 1, 2640 Mortsel

Verdieping1

Aantal verdiepingen3

Aantal slaapkamers1

Aantal badkamers1

Aantal toiletten1

Bewoonbare oppervlakte82 m²

Oppervlakte living30 m²

Energieprestatie


Certificaat elektriciteit-

Financieel


Prijs€ 355.000

Comfort


VerwarmingVloerverwarming

KeukenAlle comfort

Bebouwing


Bouwjaar2026

StaatNieuwbouw

DakPlat dak

Stedenbouwkundige informatie


VoorkooprechtNee

VergunningJa

DagvaardingNiet van toepassing

VerkavelingvergunningJa

Overstromingsgevoeligheidgelegen in effectief overstromingsgevoelig gebied

Risicozone voor overstromingenNee

Afgebakend overstromingsgebiedNee

Afgebakende oeverzoneNee

G-scoreKlasse C

P-scoreKlasse C

Deel dit pand


Gelijkaardige panden